Заказчик Компания «Агро-ПроектСтрой» проектирует промышленные объекты для хранения и переработки растительного сырья, выполняет пусконаладочные работы, оптимизирует технологические процессы действующих предприятий, производит настройку и отладку аспирационных сетей, а также сетей пневмо- и аэрозольтранспорта. Задача При подготовке технической документации требуется взаимодействовать с партнерами, использующими различные BIM-решения. Необходим инструмент, позволяющий рассматривать партнерские разработки и учитывать их при построении информационной модели, выпускать итоговую техническую документацию в соответствии с действующими стандартами. Продукты «Нанософт» Платформа nanoCAD с модулем «СПДС». nanoCAD BIM Конструкции (с 23 октября 2024 года продукт поставляется как nanoCAD BIM Строительство (конфигурация «Конструкции»)) |
Критерии, определившие выбор продуктов «Нанософт»
- Наличие инструментов построения пластинчато-стержневой модели с использованием стандартных сечений.
- База типовых элементов, разработанных в соответствии с действующими нормативами (серии, ТУ), и возможность пополнять ее собственными элементами.
- Возможность экспорта стержневой модели в расчетные комплексы (SCAD, ЛИРА).
- Автоматическое создание спецификаций на основе сформированной информационной модели.
- Возможность взаимодействия (экспорт/импорт) с любыми BIM-программами.
О компании «Нанософт» «Нанософт» — российский разработчик инженерного ПО: технологий автоматизированного проектирования (CAD/САПР), информационного моделирования (BIM/ТИМ) и сопровождения объектов промышленного и гражданского строительства (ПГС) на всех этапах жизненного цикла, а также сквозной цифровизации всех процессов в производстве. Флагманский продукт — Платформа nanoCAD — универсальная САПР для создания чертежей и 3D-моделей с прямой поддержкой *.dwg-формата (официальный сайт: nanocad.ru). Партнер «Нанософт» по внедрению Компания «СиСофт Новосибирск» была создана в 2008 году с целью предоставления полного спектра услуг в рамках автоматизации проектирования и последующей подготовки производства. Сегодня мы, находясь в столице Сибирского федерального округа Новосибирске, плотно сотрудничаем с нашими заказчиками и обеспечиваем полный набор решений для наших партнеров — от разработки концепции и до внедрения современных САПР-технологий, систем нормативно-технической документации, геоинформационных систем, систем технологической подготовки производства IT-технологий (официальный сайт: csoft-nsk.ru |

Информационная модель каркаса здания автовыгрузки, выполненная в nanoCAD BIM Конструкции

Информационная модель армирования фундамента здания автовыгрузки, выполненная в nanoCAD BIM Конструкции

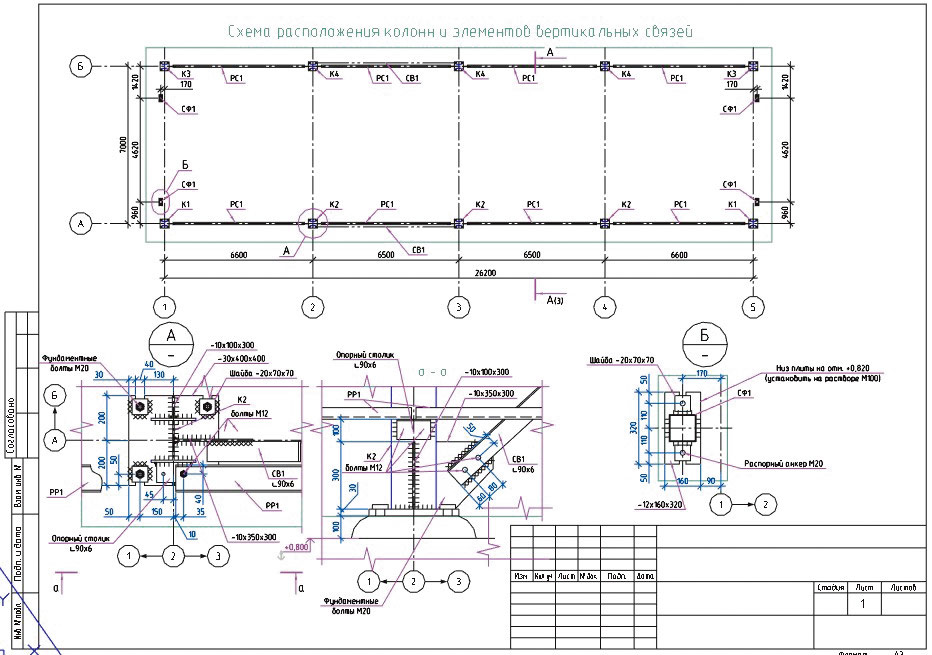
Узлы, схема расположения колонн и вертикальных связей, выполненные с использованием
nanoCAD BIM Конструкции и модуля
«СПДС» Платформы nanoCAD
Результаты
На этапе внедрения nanoCAD BIM Конструкции был выполнен пилотный проект здания авторазгрузки (разделы КЖ, КМ), в ходе которого удалось:
- выявить коллизии при разработке конструкторских разделов, обеспечить согласование со смежными отделами. Это позволило избежать дополнительных финансовых и временных затрат при проведении строительно-монтажных работ;
- в автоматическом режиме получить точные ведомости материалов;
- сократить сроки разработки технической документации. На столь небольшом объекте этот эффект оказался не очень значительным, но при разработке средних и крупных проектов экономия времени безусловна.
«В процессе освоения программы nanoCAD BIM Конструкции мы оценили удобство этого инструмента и возможности взаимодействия с другими BIM-решениями. При этом не обошлось без некоторых сложностей: марки стали некорректно отображаются в технической спецификации металла; в преднастроенной спецификации не указывается длина арматурных стержней — приходится добавлять этот параметр самостоятельно. Ожидаем исправления обеих неточностей в новом релизе продукта, что нам и обещал разработчик», — отметил Сергей Савиных, начальник строительного отдела ООО «Агро-ПроектСтрой».
Узнайте подробнее о продуктах «Нанософт»:
| Платформа nanoCAD | nanoCAD BIM Строительство |
![]() |
![]() |





