Заказчик ГК «Алгоритм» — российская архитектурно-проектная организация, основанная в 1992 году в Калуге. Осуществляет проектирование во всех сферах гражданского и промышленного строительства. Выполняет функции генерального проектировщика и технического заказчика, разрабатывает разделы проектной и рабочей документации на строительство объектов различного назначения: жилых домов; общественных, административных, коммерческих и промышленных зданий; спортивных объектов; мультимодальных транспортно-логистических центров. Задачи
|
Исходная ситуация
Проектная и рабочая документация ранее выполнялась в 2D средствами AutoCAD.
Причины, определившие выбор продуктов «Нанософт»
- Комплексное решение на базе единой инженерной платформы;
- российский разработчик, который совершенствует и расширяет линейку ПО для решения различных инженерных задач;
- гибкая система лицензирования, включающая как временные (сроком на один, два и три года), так и постоянные лицензии;
- адекватная стоимость приобретения и владения ПО;
- наличие квалифицированного партнера, предоставляющего полный комплекс услуг по внедрению и сопровождению;
- возможность самостоятельной настройки и адаптации ПО под корпоративные требования;
- короткий срок возврата инвестиций.
Результаты внедрения новых продуктов и перехода на ТИМ
- ТИМ становится стандартом как для проектировщиков, так и для строительных организаций;
- значительное, примерно вдвое, сокращение времени проектирования при использовании типовых решений;
- повышение конкурентоспособности организации — выход на более широкие рынки инжиниринговых услуг.
«Реализация проектов в единой инженерной среде nanoCAD сократила сроки проектирования благодаря сквозной автоматизации процессов. Мы повысили координацию смежных разделов и на 82% уменьшили количество междисциплинарных коллизий на стадии проектирования.
В результате оптимизации инженерно-технических решений материа-лоемкость сократилась на 5 млн рублей.
В ближайшем будущем планируем закупку ПО для полномасштабного внедрения технологии информационного моделирования.
Хотим пожелать процветания и дальнейшего развития компании “Нанософт”, чтобы ее новые инструменты были еще более функциональными, удобными и эффективными», — заявил Кирилл Савенко, исполнительный директор ЗАО «Алгоритм-Проект», основной дочерней компании ГК «Алгоритм».
Практика применения линейки nanoCAD на примере реального проекта
Чтобы опробовать технологии информационного моделирования, специалисты ГК «Алгоритм» при участии «Бюро САПР» выполнили пилотный проект 16-этажного жилого дома в Калуге, который ранее был спроектирован методами классического двумерного проектирования (рис. 1).

Рис. 1. Выполненный с применением продуктов линейки nanoCAD и загруженный в CADLib Модель и Архив комплексный пилотный проект 16-этажного жилого дома в Калуге
В доме 135 квартир: одно-, двух- и трехкомнатных. Площадь здания составляет 12 464 м2, строительный объем — 47 574 м3, степень огнестойкости здания — II, класс конструктивной пожарной опасности — СО.

Рис. 2. 3D-модель конструкций первого этажа здания с фундаментом и техническим этажом, выполненная в nanoCAD BIM Конструкции
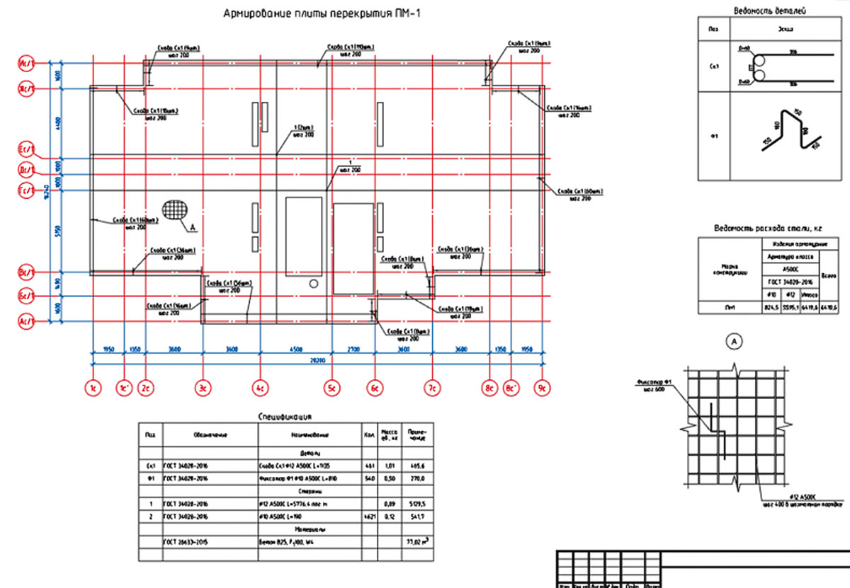
Архитектурно-строительная часть была разработана в nanoCAD BIM Конструкции (рис. 2) и модуле «СПДС» Платформы nanoCAD. Армирование монолитных конструкций с автоматическим получением чертежей, схем армирования, спецификаций и ведомостей по конструкциям выполнялось в nanoCAD Конструкции PS (рис. 3).

Рис. 3. Армирование монолитной плиты с получением ведомостей и спецификации, выполненное в nanoCAD Конструкции PS
Витражи и двери представляют собой параметрическое оборудование с возможностью его применения в других проектах. Здание проектировалось по-
этажно с последующим экспортом и сборкой в CADLib Модель и Архив. Планы выгружены в IFC для выдачи планировок смежникам.
Генеральный план выполнен в nanoCAD GeoniCS с модулями «Топоплан» и «Генплан». Специалисты сначала поднимали существующий рельеф (рис. 4), а затем формировали его основание, площадку дома. 3D-модель благоустройства территории (рис. 5) включает все трехмерные объекты: озеленение (деревья) и малые архитектурные формы. Эти объекты были добавлены в раздел «Благоустройство» базы данных nanoCAD GeoniCS.

Рис. 4. Поверхность цифровой модели рельефа, выполненная в nanoCAD GeoniCS

Рис. 5. Трехмерная модель благоустройства территории, выполненная в nanoCAD GeoniCS
Инженерия. Система отопления сформирована в nanoCAD BIM Отопление. На основании поэтажных планировок (по всем этажам или по выбранному этажу) в автоматическом режиме строилась единая твердотельная 3D-модель (рис. 6).

Рис. 6. 3D-модель системы отопления, выполненная в nanoCAD BIM Отопление
В nanoCAD BIM Отопление реализованы гидравлический расчет главного циркуляционного кольца и второстепенных колец, тепловой расчет по СП 60.13330.2016 (рис. 7). При проведении расчета программа создает полную трехмерную модель системы отопления, благодаря чему есть возможность просматривать расчетные параметры в участках сети.

Рис. 7. Расчеты системы отопления, выполненные в nanoCAD BIM Отопление
На основе расчетов программа производит автоматический подбор диаметров трубопроводов, типоразмеров арматуры, количества радиаторов, регистров или типа конвектора. По результатам этих расчетов инженер осуществляет балансировку системы отопления, подбирая балансировочные клапаны для увязки второстепенных колец с главным кольцом. Все данные по клапанам можно посмотреть в отчете «Настройки арматуры», который отображает пропускную способность арматуры, тип системы и горизонтальные участки трубопровода, на которых она установлена.
Система водоснабжения и канализации реализована в nanoCAD BIM ВК. Спроектированы трасса, основные потребители и параметры сети, подключение к стоякам. На основе построенных поэтажных планов (рис. 8) сформирована трехмерная модель для всего здания. Далее была сгенерирована аксонометрическая схема систем канализации, холодного и горячего водоснабжения (рис. 9), а также создана спецификация оборудования (рис. 10) с возможностью выгрузки в любой удобный формат.

Рис. 8. План систем водоснабжения и канализации на первом этаже здания, выполненный в nanoCAD BIM ВК

Рис. 9. Аксонометрические схемы систем водоснабжения, выполненные в nanoCAD BIM ВК. Слева направо: канализация, холодное водоснабжение, горячее водоснабжение

Рис. 10. Спецификация оборудования, изделий и материалов, автоматически сформированная в nanoCAD BIM ВК
Электротехническая часть спроектирована в nanoCAD BIM Электро. Используя 3D-модель здания в качестве архитектурной подложки, специалисты произвели расстановку оборудования, выполнили трассировку и прокладку кабельных трасс между потребителями и распределительными устройствами (рис. 11). Элементы электроснабжения типового этажа растиражированы для построения цельной 3D-модели электрических сетей всего здания (рис. 12).

Рис. 11. План системы электроснабжения второго этажа, выполненный в nanoCAD BIM Электро

Рис. 12. 3D-модель системы электроснабжения, выполненная в nanoCAD BIM Электро
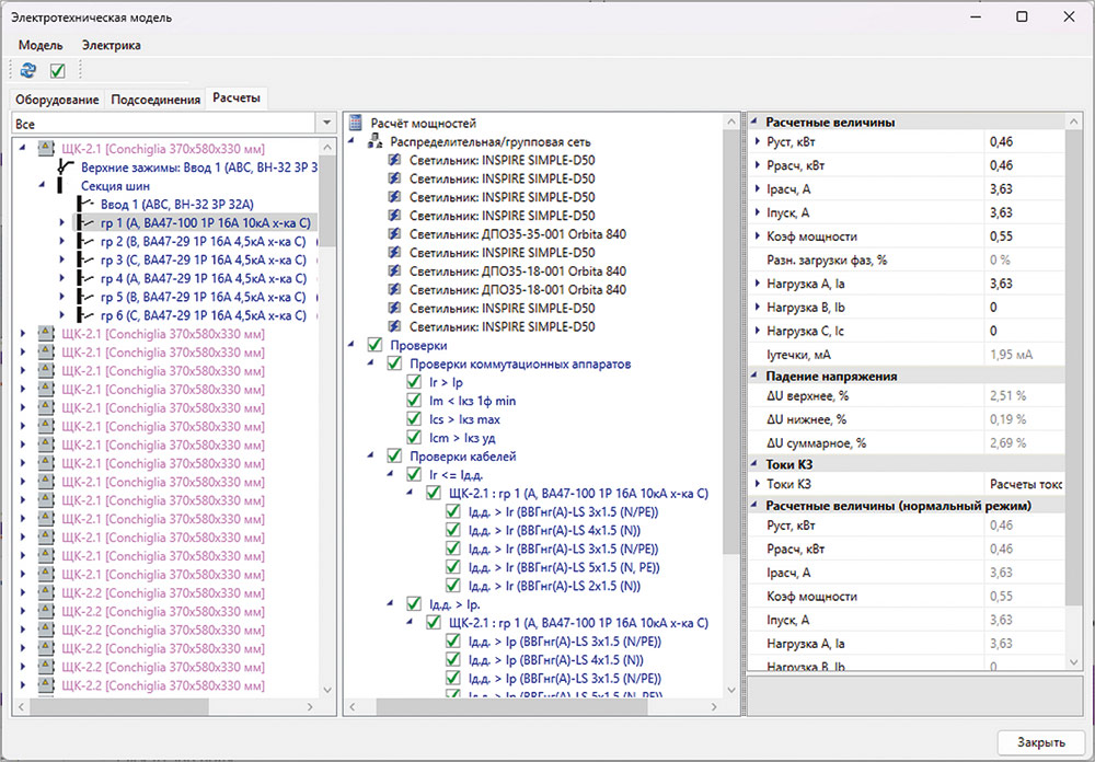
Подбор коммутационных аппаратов и подключение элементов электрической сети производились на основе электротехнической модели объекта. Расчет нагрузок и токов КЗ для выбранного оборудования выполнялся автоматически в зависимости от параметров потребителей, свойств кабелей, а также с учетом характеристик электрических аппаратов и режимов работы (рис. 13). В качестве сводного инструмента проверки модели был использован встроенный Мастер проверок (рис. 14).

Рис. 13. Автоматический расчет нагрузок и токов КЗ для выбранного оборудования, выполненный на основе электротехнической модели объекта

Рис. 14. Встроенный Мастер проверок в nanoCAD BIM Электро как инструмент проверки электротехнической модели
Создание сводной ТИМ-модели, поиск коллизий
После того как все необходимые инженерные решения были приняты и отражены в проекте, настала очередь сборки общей модели и визуальной проверки всех систем. Это позволило избежать характерных для двумерного проектирования ошибок, при которых сети пересекаются и накладываются друг на друга. В единой 3D-модели эти моменты отслеживаются просто, ошибки устраняются быстро. Сборка общей модели и поиск коллизий выполнены в CADLib Модель и Архив (рис. 15).

Рис. 15. Комплексная ТИМ-модель, созданная с применением инструментов nanoCAD и загруженная в CADLib Модель и Архив
О компании «Нанософт» «Нанософт» — российский разработчик инженерного ПО: технологий автоматизированного проектирования (CAD/САПР), информационного моделирования (BIM/ТИМ) и сопровождения объектов промышленного и гражданского строительства (ПГС) на всех этапах жизненного цикла, а также сквозной цифровизации всех процессов в производстве. Флагманский продукт — Платформа nanoCAD — универсальная САПР для создания чертежей и 3D-моделей с прямой поддержкой *.dwg-формата (официальный сайт: www.nanocad.ru). |
Партнер «Нанософт» по внедрению Бюро САПР — премьер-партнер, фокус-партнер по направлениям «Конструкции», «Инженерия», «Землеустройство», «Обработка данных лазерного сканирования». |





